
Porcher Immobilier
26 rue Botzaris
75019 Paris
France
+33 1 53 72 80 90 (Botzaris)
+33 1 42 08 58 24 (Belleville)
contact@porcherimmobilier.com
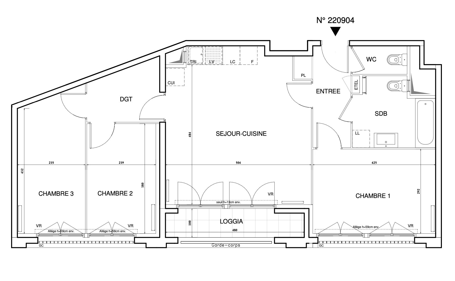
93 BOBIGNY APPARTEMENT 4 PIECES DANS L'ECO QUARTIER PIETONNIER "AU COEUR DE VILLE".
DANS UN ENSEMBLE IMMOBILIER DE RESIDENCES NEUVES AU PIED DU METRO PABLO PICASSO ET DU TRAMWAY- NOUS VOUS PROPOSONS DANS L'IMMEUBLE "LUMIN" UN APPARTEMENT DE 4 PIECES COMPOSE D'UNE ENTREE - UN SEJOUR CUISINE AVEC LOGGIA - 3 CHAMBRES - 1 SALLE DE BAIN AVEC WC - 1 WC INDEPENDANT - CHAUFFAGE URBAIN - UN PARKING EN SOUS-SOL.
COMMERCES - SERVICES - CRECHE CINEMAS ESPLANADES -ALLÉES PIETONNES SERONT LES ATOUTS SUPPLEMENTAIRES DE CES CONSTRUCTIONS AUX NORMES HQE POUR VOTRE FAMILLE. LIVRAISON FIN ANNEE 2024 GARANTIE DECENNALE
Pas d'informations disponibles

26 rue Botzaris
75019 Paris
France
+33 1 53 72 80 90 (Botzaris)
+33 1 42 08 58 24 (Belleville)
contact@porcherimmobilier.com
Ce site est protégé par reCAPTCHA et les règles de confidentialité et les conditions d'utilisation de Google s'appliquent.